Piso en VENTA en Lardero REF: 24P39742
GRAN OPORTUNIDAD DE VIVIR EN LARDERO A MUY BUEN PRECIO¡¡¡¡¡¡¡…
154.000€
En Venta
560.000€
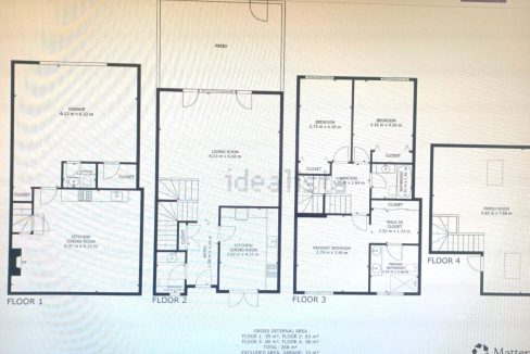
PRECIOSO ADOSADO EN LAS TERRAZAS DE MONTESORIA¡¡¡¡¡
Si estas buscando tu casa ideal, aqui la tienes…..
Exclusivo adosado en una urbanizacion privilegiada acogedora y familiar.
Reformado recientemente, con mucho gusto y cariño.
Se distribuye de la siguiente manera:
-Planta sotano: acogedor merendero amueblado con su cocina toda equipada, chimenea que crea un ambiente muy agradable, aseo, garaje para dos coches y motos y un trastero.
-Planta principal: hall recibidor con aseo y armario empotrado. Un amplio salon, con acceso directo a terraza completamente equipada, y una encantadora cocina completamene nueva con materiales de buena calidad con salida a una coqueta terraza.
-Planta primera: habitacion principal con vestidor y baño en suite con ducha, dos habitaciones mas con armarios empotrados y un baño con bañera.
-Planta segunda: atico equipado donde encontramos la cuarta habitacion y un trastero donde esta ubicada la caldera. Tiene instalacion por si se quiere hacer otro baño.
La calefaccion es indipendiente en cada planta .
Suelos de parquet, puerta de entrada blindada, ventanas de madera con cristales de climalit.
La zona comun es increible, grandes jardines, dos piscinas una de ellas para los mas peques de la familia y pista de tenis.
No dejes de escapar esta gran oportunidad y ven a visitarlo¡¡¡
Para ampliarte información nos puedes contactar en » Gestión Inmobiliaria Onda Próxima »
Estaremos encantados de ayudarte.
Gran Vía, 53 Bajo. LOGROÑO.
Tlf. 941 201 412
Ven a Onda Próxima S.L.
Los datos expuestos son ofrecidos por terceros, meramente informativos y se suponen correctos. Onda Próxima S.L. no garantiza su veracidad. La oferta se sujeta a errores, cambios de precio, omisión y/o retirada del mercado sin aviso previo. Los gastos de transmisión patrimonial, IVA, notario y registro corren a cargo del comprador.
GRAN OPORTUNIDAD DE VIVIR EN LARDERO A MUY BUEN PRECIO¡¡¡¡¡¡¡…
154.000€
PRECIOSO PISO EN URBANIZACION EL RETIRO EN ALBELDA DE IREGUA!!!!!!!!!!…
99.800€
Casa en VENTA en Logroño REF: 24C39779